Kent Street O'leary, Prince Edward Island C0B 1V0

Air Conditioned, Air Exchanger Wall Mounted Heat Pump

$530,000

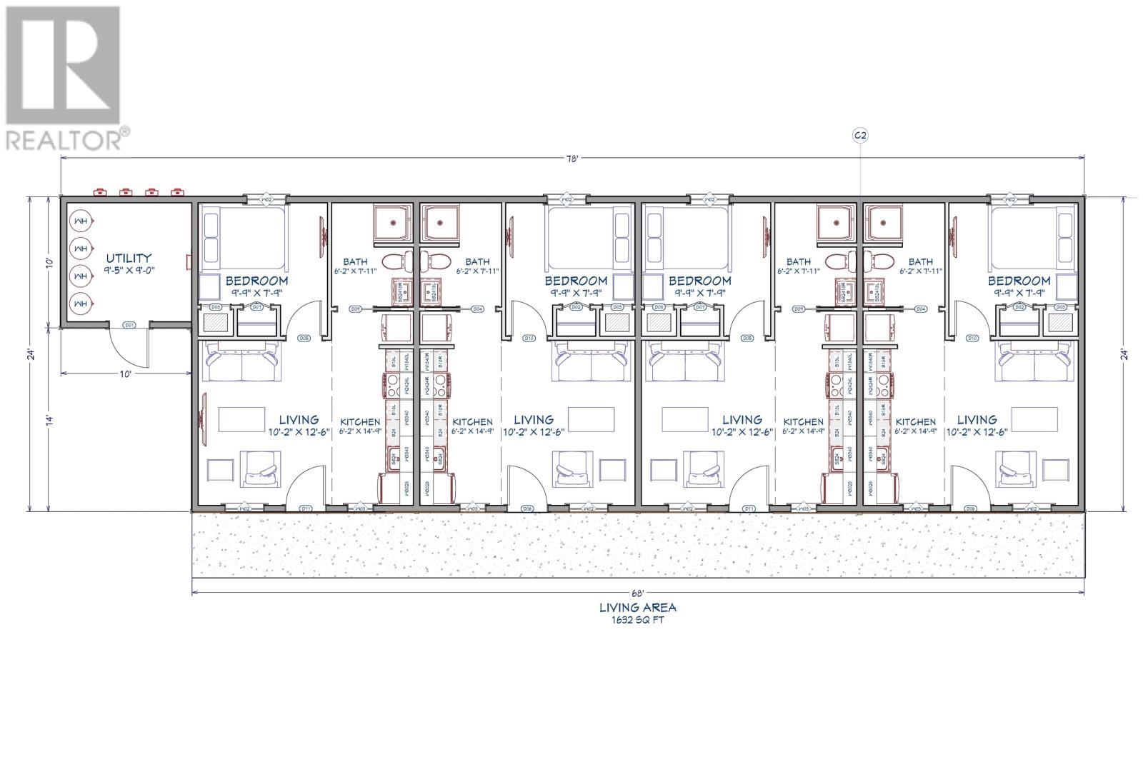
Investments opportunity ready mid September/October 2026. Own a 4 unit apartment building with micro unit efficiency living. Building will be custom built with all brand new appliances to be included; fridges, stoves, dishwashers, washers/dryers and microwaves. Ample parking for all tenants on a .3 acre lot measuring 181x65. An Atlantic Commercial Home Owners Warranty shall be included. (id:27714)

Property Details

MLS® Number 202604509
Property Type Multi-family
Community Name O'Leary
Amenities Near By Golf Course, Park, Playground, Public Transit, Recreation, Shopping
Community Features School Bus
Equipment Type None
Rental Equipment Type None

Building

Amenities Air Conditioning, Laundry Facility
Appliances Oven - Electric, Range - Electric, Washer/dryer Combo, Microwave, Refrigerator
Basement Type None
Cooling Type Air Conditioned, Air Exchanger
Exterior Finish Vinyl
Flooring Type Laminate
Foundation Type Poured Concrete
Heating Fuel Electric
Heating Type Wall Mounted Heat Pump
Stories Total 1
Type Fourplex
Utility Water Drilled Well

Parking

Parking Space(s)
Shared

Land

Acreage No
Land Amenities Golf Course, Park, Playground, Public Transit, Recreation, Shopping
Sewer Unknown
Size Irregular 181x65
Size Total Text 181x65|under 1/2 Acre
Zoning Type Multi-family

https://www.realtor.ca/real-estate/29466785/kent-street-oleary-oleary

Contact Us

Contact us for more information

Generating Captcha